Київська, Киево-Святошинский, Вита-Почтовая, Садова вул., 6
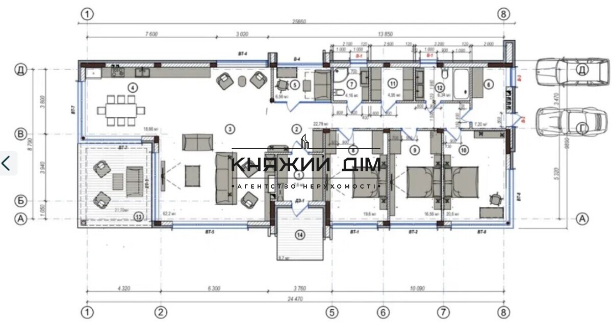
Продам котедж в с.Віта-Поштова 198м2 +тераса з ділянкою 12 сот - 5 хвилин на авто від Києва. Знаходиться в тихому місці - поруч ліс, озеро.Є найкращим варіантом заміського житла в Одеському напрямку.Вдале планувальне рішення в одному рівні – 3 зручні спальні, кабінет, простора вітальня-студіо з можливістю встановлення каміна, тераса з перголою, вбиральня, 2 санвузли.На останніх фото дизайн-проект аналогічного будинку-Площа ділянки – 12 соток (проведено топографічну зйомку, геологію, геодезію).-Площа будинку – 198 м2.-Кількість кімнат - 4, 2 санвузли, кухня, кабінет, гардероб, топкова.-Тераса - 22 м2.-Накриття тераси - дерев'яна пергола.-Свердловина - 82 м2 (сеноманський обрій).-Септик – автономний біосептик + дренажне поле.-Електрика - 20 кВт.Матеріали, що використані у будівництві котеджу:- Фундамент - монолітна плита товщиною 300 мм з ребром жорсткості.- Гідроізоляція фундаменту зовнішня та внутрішня (стиродур, мастика, руберойд).- Будова - монолітно-каркасна (бетон Б25).- Перекриття монолітні (бетон Б25).- Стіни - газобетон Д400 (товщиною 300 мм).- Перегородки - повнотіла червона цегла М100.- Фасад-термодерево - новозеландська сосна, короїд.- Утеплення фасаду - мінеральна вата 100 мм. Щільність – 135 гр/м2.- Оздоблення декоративних колон і цоколя - гнучка кераміка.- Вікна Salamander BlueEvolution 82 - 6 камер, 3 контури ущільнення.- Енергозберігаючий склопакет - двокамерний товщиною 50 мм, газ - аргон.- Мультифункціональне скло - 6 мм.- Монтаж з використанням гідро-пароізоляційних стрічок та теплого підставочного профілю за ДСТУ.- Дах скатний - фальцева покрівля, сталь європейської якості товщиною 0,5 мм.- Утеплення скатної покрівлі - мінеральна вата PAROC (Фінляндія) товщиною 250 мм.- Пласка покрівля - ПВХ мембрана FATRAFOL (Чехія) товщиною 1,5 мм.- Утеплення пласкої покрівлі - пінопласт 200 мм, щільність - 35 + бетонна стяжка - 200 мм.- Водостічні системи - металевий водостік виробництво Польща, сталь товщиною 0,7 мм SSAB (Швеція).- Паркан - металевий штакетник (Італія).- Ворота відкатні дистанційним керуванням.- Тротуарна плитка - Лайнстроун платіна (Україна).- Терасна плитка - клінкерна плитка (Польща).